Free Printable Chicken Coop Plans

Are you looking to build a chicken coop but not sure where to start? Look no further! We have a collection of free printable chicken coop plans that will make the process a breeze.

With our easy-to-follow plans, you can create a cozy and functional home for your feathered friends in no time. Whether you’re a beginner or a seasoned DIYer, these printable plans are perfect for anyone looking to add a chicken coop to their backyard.

free printable chicken coop plans

free printable chicken coop plans

Free Printable Chicken Coop Plans

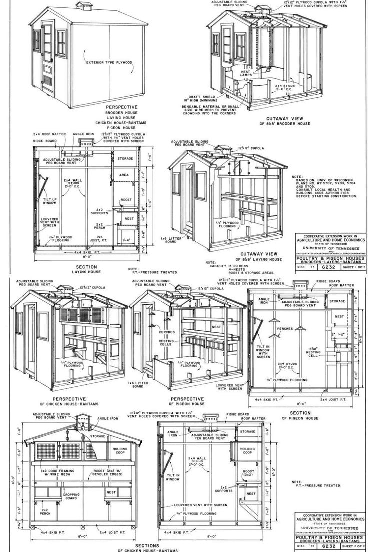
When it comes to building a chicken coop, having a detailed plan is essential. Our printable plans include step-by-step instructions, material lists, and blueprints to help you every step of the way. You’ll be able to customize your coop to fit your space and needs, ensuring a happy and healthy flock.

Not only are these printable plans easy to use, but they can also save you time and money. By having a clear vision of your project from the start, you can avoid costly mistakes and ensure a successful build. Plus, there’s something satisfying about creating something with your own two hands.

Whether you’re looking to raise chickens for eggs, meat, or just for fun, having a well-designed coop is essential. Our free printable chicken coop plans will help you create a safe and comfortable home for your feathered friends, allowing you to enjoy all the benefits of keeping chickens without the hassle.

So why wait? Download our free printable chicken coop plans today and get started on your next DIY project. Your chickens will thank you!

Small Chicken Coop With Planter Clean Out Tray And Nesting Box Ana White

Small Chicken Coop With Planter Clean Out Tray And Nesting Box Ana White

25 Free DIY Chicken Coop Plans With PDF Instructions DIY Cozy Home

25 Free DIY Chicken Coop Plans With PDF Instructions DIY Cozy Home

10 Free 8x8 Chicken Coop Plans You Can DIY This Weekend

10 Free 8×8 Chicken Coop Plans You Can DIY This Weekend

Including a free printable chicken coop plans can make a big difference when it comes to improving focus, memory, and vocabulary. They’re perfect for strengthening critical thinking and concentration. Because they’re printable, you can reuse them anytime. Whether part of a classroom activity, a free printable chicken coop plans keeps the mind sharp and engaged. Even quick sessions lead to sharper thinking.

4x4 Chicken Coop Plans MyOutdoorPlans

4×4 Chicken Coop Plans MyOutdoorPlans

110 Coop Building Plans Ideas Coop Chickens Backyard Building A Chicken Coop

110 Coop Building Plans Ideas Coop Chickens Backyard Building A Chicken Coop

With so many ways to stay creative and productive, The right free printable chicken coop plans offers exactly that. Be it a daily project or a relaxing weekend task, each one keeps you focused and entertained. Pair them with your coffee or quiet time, and enjoy a daily dose of productive fun. Ultimately, the right free printable chicken coop plans has the power to support growth at any age.